Property Detail

1382 Lance Drive

Tustin CA 92780

$1,795,000

Status: Active

Property Details

Description

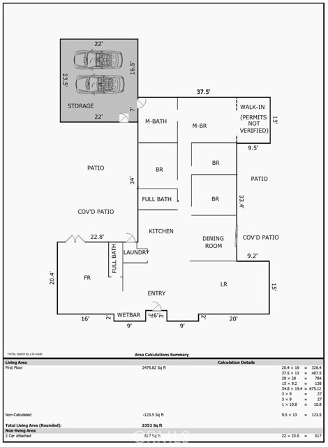
Experience refined Southern California living in this exquisitely upgraded single-level Tustin residence, perfectly positioned on an expansive 7,252 sq. ft approximately corner lot. Designed for those who appreciate elevated style and effortless indoor-outdoor living, this exceptional home blends modern sophistication with timeless comfort. A grand, light-filled interior welcomes you with an elegant wrap-around living room featuring a custom entertainment wall, fireplace, and seamless flow into the formal dining space. The chef’s kitchen is a true showpiece—appointed with pristine brown cabinetry, a striking Granite counter tops, premium KitchenAid built-in refrigeration, and a dedicated beverage station. Large sliders in the great room open wide to create a harmonious connection to the outdoor lounge, and tranquil views of lush greenery. The private primary suite offers a spacious custom enlarged walk-in closet and a beautifully remodeled ensuite bath. Three additional bedrooms provide generous comfort. Throughout the home, refined finishes such as crown molding, and Tile flooring, dual-pane windows, recessed lighting, and updated interior doors elevate the living experience. Step outside to your own resort-style sanctuary—an expansive backyard framed by mature landscaping. Multiple entertaining areas, and a collection of seasonal fruit trees create an atmosphere of relaxation and luxury. Modern conveniences include fully paid solar(29 panels), paid security cameras(12) and a spacious 2-car garage. Located on a quiet cul-de-sac in the heart of Tustin, this residence offers unmatched privacy while remaining moments from premier shopping, dining, parks, award-winning schools, and easy access to the 5, 55, and 261 freeways. A rare offering that combines sophistication, comfort, and an extraordinary lifestyle setting. * Around $200K upgrades including Roof and bathrooms in 2023, Heating system in 2022, AC Units, Ducts, Backyard, Fence etc.,

Map Location

Listing provided courtesy of Ramesh Gattu of Realty Masters & Associates. Last updated 2026-04-29 08:36:51.000000. Listing information © 2025 CRMLS.

Inquire Now
admin Real estate https://s3.amazonaws.com/static.organiclead.com/Site-48750597-fad4-4739-909d-ca390a15c8e5/theme1/realtor.jpg Broker/Owner # # # https://s3.amazonaws.com/static.organiclead.com/Site-48750597-fad4-4739-909d-ca390a15c8e5/theme1/realtor.jpg