Property Detail

3833 Randolph

Los Angeles CA 90032

$1,469,000

Status: Active

Property Details

Description

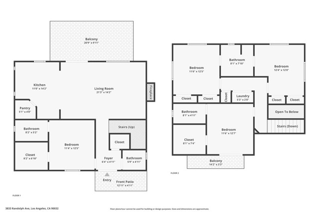
Two Homes on One Lot -BOTH HOMES VACANT– A Rare Opportunity in Elephant Hills Perfect for multi-generational living, investment, or living in one home while renting the other. Located in the highly desirable Elephant Hills neighborhood—just two streets off Collis and minutes from South Pasadena—this exceptional property offers two fully independent homes on a generous lot, each with its own parking and separate utilities. A truly unique find in one of Northeast LA’s most sought-after pockets. Back House – Modern -newer Construction with Stunning Views A newer, thoughtfully designed home featuring contemporary finishes and a flexible layout: • First-floor Master bedroom/full bath -Second master bedroom on second floor. • Guest-friendly half bath on the main level • Open-concept living, dining, and kitchen ideal for entertaining • Chef-inspired kitchen with high ceilings, custom cabinetry, pantry, island seating, and double glass doors opening to a spacious balcony overlooking mature trees and twinkling city lights • Inviting living room with a gas fireplace—perfect for cozy evenings • Upper level includes a second primary suite with private balcony, plus two additional bedrooms and a full bath • Central AC and heating for year-round comfort This home offers privacy, space, and beautiful natural surroundings. Front House – Fully Remodeled with Classic Charm A beautifully updated 3-bedroom, 1-bath home that blends character with modern convenience: • Brand-new kitchen cabinets with cork countertops • Fresh interior paint and refinished hardwood floors • Remodeled bathroom, new windows, and new roof • New split AC/heating system • Large basement ideal for storage, workshop, or creative studio The expansive front yard features lush green grass—perfect for play, gardening, or enhancing curb appeal. Outdoor Features & Lot Highlights • Three tiers of leveled backyard with fruit trees • Space for small RV parking in the front • Easy access to major freeways and main streets • Quick commute to DTLA, USC Medical Center, and all the trendy restaurants, boutiques, and coffee shops in Highland Park

Map Location

Listing provided courtesy of Maribel Munoz of TREVINO PROPERTIES, INC.. Last updated 2026-03-09 08:19:10.000000. Listing information © 2025 CRMLS.

Inquire Now
admin Real estate https://s3.amazonaws.com/static.organiclead.com/Site-48750597-fad4-4739-909d-ca390a15c8e5/theme1/realtor.jpg Broker/Owner # # # https://s3.amazonaws.com/static.organiclead.com/Site-48750597-fad4-4739-909d-ca390a15c8e5/theme1/realtor.jpg