Property Detail

S 32nd

San Diego CA 92113

$2,300,000

Status: Active

Property Details

Description

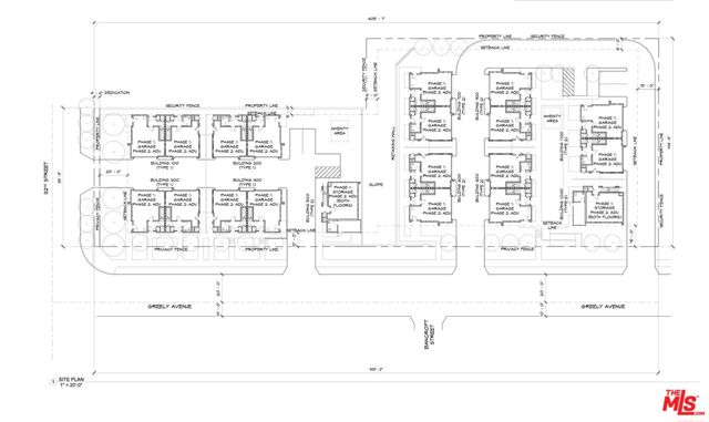
Rare multi-parcel development opportunity in an Opportunity Zone (QOZ) offering potential substantial tax benefits. This offering includes 8 contiguous parcels of land in an area that is nearly fully built out, making opportunities like this increasingly scarce. The sale includes architectural plans for a 41-unit residential project, allowing a buyer to move forward with a clear development vision already in place. Surrounded by established properties, this site sits in an up-and-coming pocket of San Diego benefiting from strong demand for housing and ongoing neighborhood growth. With infrastructure in place and a high density potential, this is an ideal acquisition for a builder or developer seeking scale in a supply-constrained market. A compelling opportunity to develop a sizable residential project in a location where new land offerings are limited positioned for long-term value and rental demand.

Map Location

Listing provided courtesy of Gina Canzona of Compass. Last updated 2026-02-12 09:21:29.000000. Listing information © 2025 CRMLS.

Inquire Now
admin Real estate https://s3.amazonaws.com/static.organiclead.com/Site-48750597-fad4-4739-909d-ca390a15c8e5/theme1/realtor.jpg Broker/Owner # # # https://s3.amazonaws.com/static.organiclead.com/Site-48750597-fad4-4739-909d-ca390a15c8e5/theme1/realtor.jpg