Property Detail

1750 Eagle

Rialto CA 92376

$621,990

Status: Active

Property Details

Description

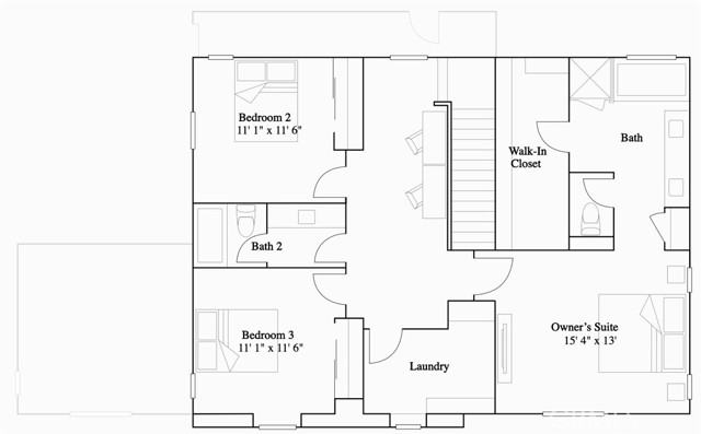
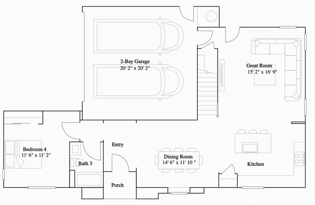
NEW CONSTRUCTION! This new two-story home features a convenient bedroom on the first floor near an inviting open-concept floorplan shared between the kitchen, living and dining areas. Three additional bedrooms are located on the second floor, including the luxe owner’s suite with a spa-inspired bathroom and walk-in closet. A two-bay garage completes the home. Aviator brings new single-family homes to the Renaissance masterplan, now selling in Rialto, CA. The gated community offers an amenity-rich lifestyle with an onsite swimming pool, playground, dog park, tot lot and much more. Residents will be a short drive from shopping, dining and entertainment options at the Renaissance Marketplace. Renaissance boasts a prime location near the I-210 and I-15 freeways, offering easy commutes to Los Angeles, San Bernardino and other surrounding areas. Plus, the community is conveniently located near top universities such as California State University, San Bernardino (CSUSB) and the University of California, Riverside (UCR), providing excellent opportunities for higher education.

Map Location

Listing provided courtesy of Todd Myatt of Century 21 Masters. Last updated 2026-02-08 09:15:53.000000. Listing information © 2025 CRMLS.

Inquire Now
admin Real estate https://s3.amazonaws.com/static.organiclead.com/Site-48750597-fad4-4739-909d-ca390a15c8e5/theme1/realtor.jpg Broker/Owner # # # https://s3.amazonaws.com/static.organiclead.com/Site-48750597-fad4-4739-909d-ca390a15c8e5/theme1/realtor.jpg