Property Detail

4326 Escondido

Malibu CA 90265

$499,000

Status: Active

Property Details

Description

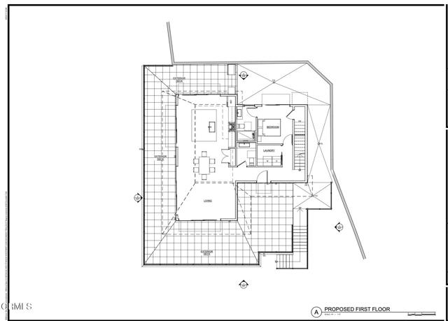
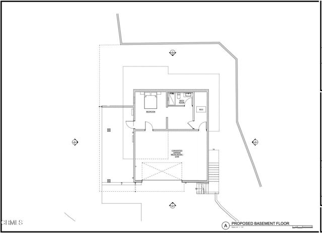
Complete RTI plans with permits paid for! Now is your chance to skip the plan check line and break ground on this modern Malibu home with ocean views on almost a full acre of land! Plans are for a 3-story home offering almost 2,000sf of living space including a 546 SF garage, and with 2,367 SF of total deck space. Just 10 minutes from PCH, the location is very convenient with easy access to Pepperdine and all of Malibu's shops. Enhancements to the site include retaining walls and a 1,500 gallon septic tank both in place and approved. The water line and electric utilities are already on site. Per the LA County Planner, potential add-ons include a 900-1,200 standalone guesthouse. This is truly a great opportunity for a homeowner looking to build their dream home or for a developer who plans to resell. The owner has a full construction bid for $950k which he is happy to share. Start your next project today!

Map Location

Listing provided courtesy of Yonathan Canete Baltazar of COMPASS. Last updated 2026-02-08 09:21:52.000000. Listing information © 2025 CRMLS.

Inquire Now
admin Real estate https://s3.amazonaws.com/static.organiclead.com/Site-48750597-fad4-4739-909d-ca390a15c8e5/theme1/realtor.jpg Broker/Owner # # # https://s3.amazonaws.com/static.organiclead.com/Site-48750597-fad4-4739-909d-ca390a15c8e5/theme1/realtor.jpg