Property Detail

686 7th

Chico CA 95928

$435,000

Status: Active

Property Details

Description

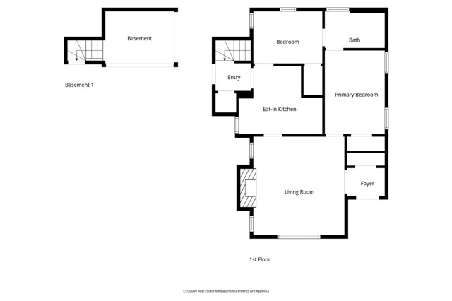
What a gem! Located in the heart of downtown Chico, this charming bungalow offers an incredible opportunity with two homes on one lot, just minutes from Bidwell Park, downtown markets and restaurants, and Chico State. The front home features 2 bedrooms and 1 bathroom and is filled with classic character. Wood flooring runs through most of the living spaces, complemented by beautiful wood-cased windows that keep the home light and bright. The cozy living room centers around a charming white rock fireplace—perfect for relaxing evenings. Just off the living room is an adorable, bright white kitchen with ample cabinet space and a sweet dining nook. A basement provides excellent additional storage. Between the two homes, you’ll find a spacious shared yard with a storage shed. The back unit is a darling 1 bedroom, 1 bathroom home with its own inviting front patio. Inside, natural light pours into the space, highlighting the high ceilings and a spacious living room complete with a charming window seat. The living area flows seamlessly into the kitchen, which features a large picture window and a peninsula countertop with seating. This unit has fresh white interior paint, dual-pane windows, private washer and dryer closet and its own private driveway with alley access. Whether you’re looking for a fantastic investment opportunity or a place to live in one unit and rent the other, this downtown Chico property offers flexibility, charm, and an unbeatable location.

Map Location

Listing provided courtesy of John Barroso of Parkway Real Estate Co.. Last updated 2026-02-13 09:17:15.000000. Listing information © 2025 CRMLS.

Inquire Now
admin Real estate https://s3.amazonaws.com/static.organiclead.com/Site-48750597-fad4-4739-909d-ca390a15c8e5/theme1/realtor.jpg Broker/Owner # # # https://s3.amazonaws.com/static.organiclead.com/Site-48750597-fad4-4739-909d-ca390a15c8e5/theme1/realtor.jpg