Property Detail

11042 Manchester

Rancho Cucamonga CA 91701

$3,700

Status: Active

Property Details

Description

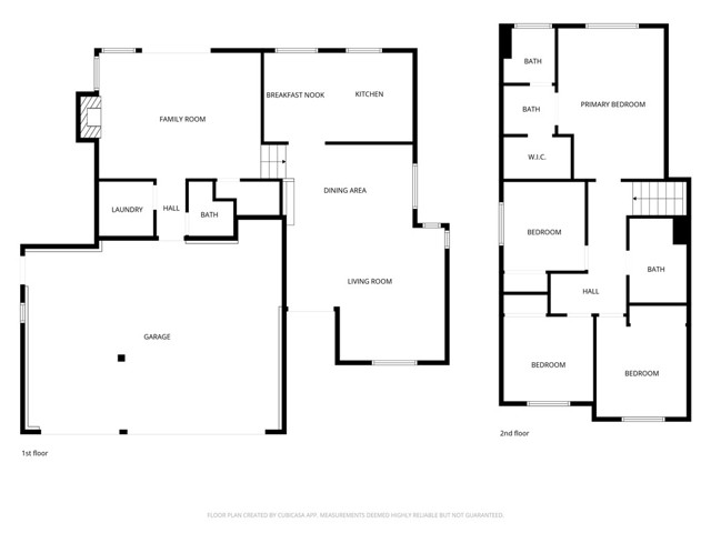
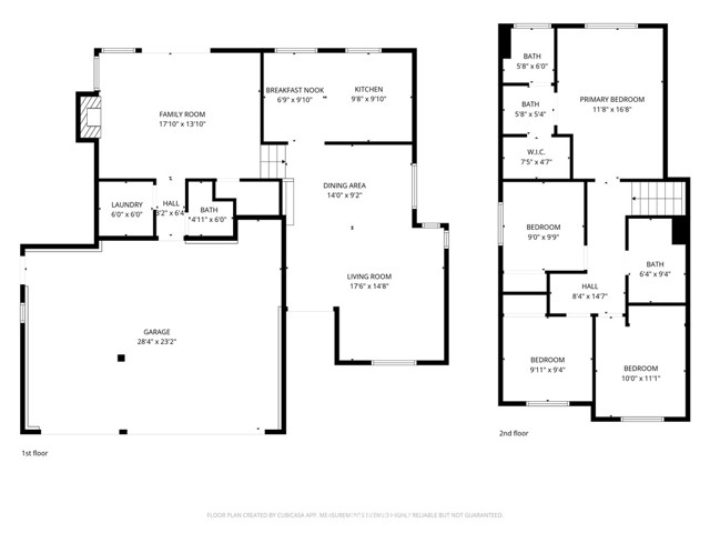
Welcome to this warm and inviting 4BD/2.5BA home in the desirable Victoria Groves neighborhood of Rancho Cucamonga, situated on a peaceful corner lot. An elegant double-door entry opens to bright formal living and dining areas with vaulted ceilings, while the newly updated kitchen features stainless steel appliances, white shaker cabinets, chic quartz countertops, and a cozy breakfast nook. The inviting step-down family room offers a brick fireplace and sliding doors that lead to a spacious backyard garden filled with multiple fruit trees, creating a private outdoor retreat. Upstairs, all four bedrooms sit on one level, including a generous primary suite with mountain views, a walk-in closet, and an en-suite bath. Additional highlights include fresh interior paint, luxury vinyl plank flooring, new dual-pane windows, updated bathroom fixtures, a convenient downstairs laundry room, and a 3-car garage. The home is conveniently located near shopping, dining, parks, and scenic walking and biking trails—offering a serene yet convenient lifestyle in one of the area’s most sought-after communities.

Map Location

Listing provided courtesy of Kayla Lu of COLDWELL BANKER DYNASTY. Last updated 2025-12-11 09:19:26.000000. Listing information © 2025 CRMLS.

Inquire Now
admin Real estate https://s3.amazonaws.com/static.organiclead.com/Site-48750597-fad4-4739-909d-ca390a15c8e5/theme1/realtor.jpg Broker/Owner # # # https://s3.amazonaws.com/static.organiclead.com/Site-48750597-fad4-4739-909d-ca390a15c8e5/theme1/realtor.jpg