Property Detail

39048 Camino Orquesta

Indio CA 92203

$395,000

Status: Active

Property Details

Description

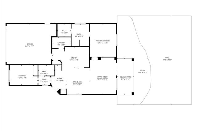
Model Home Excellence! A highly upgraded Embark model with East facing patio, 1321 SF built in 2013. Beautifully finished; just move in and enjoy! Upgraded 20 inch tile laid on the diagonal everywhere except bedrooms. Gorgeous kitchen with slab granite countertops, breakfast bar, glass tile backsplash, with stool height island, and upgraded stainless steel appliances; Miele dishwasher & Whirlpool microwave. Upscale pendant, recessed & lighting fixtures as well as ceiling fans. Spacious dining area & desk nook. Solar tubes in kitchen and guest bathroom providing splash of natural light. Primary bedroom has views of lushly landscaped, yet low maintenance back yard. Primary bath has dual-vanities, shower & walk-in closet. Guest bedroom has custom Murphy bed with glass display cabinets and lighting! Custom window treatments & Plantation shutters throughout. Phantom screens on slider door.Separate laundry room off kitchen.Open and spacious custom epoxy back patio extended beyond the covered portion ideal for sunning, dining and entertaining. Insulated garage with battery back-up door & windowed over-head. Extra storage. Eye-catching epoxy driveway. Great location close to clubhouse! Reasonable HOA dues of only $369 a month includes Guard gates, roaming security, common area maintenance and access to resort-style amenities including golf, tennis, pickleball, bocce, and sparkling pools and spas. Two beautiful clubhouses offer even more opportunities to stay active and social. Stop searching and start living the active lifestyle in Sun City Shadow Hills 55+ community.

Map Location

Listing provided courtesy of Richard Chamberlin of Compass. Last updated 2025-11-15 09:14:55.000000. Listing information © 2025 CRMLS.

Inquire Now
admin Real estate https://s3.amazonaws.com/static.organiclead.com/Site-48750597-fad4-4739-909d-ca390a15c8e5/theme1/realtor.jpg Broker/Owner # # # https://s3.amazonaws.com/static.organiclead.com/Site-48750597-fad4-4739-909d-ca390a15c8e5/theme1/realtor.jpg