Property Detail

4573 Jessica

Los Angeles CA 90065

$365,000

Status: Active

Property Details

Description

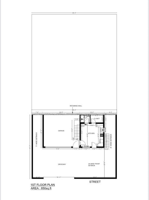
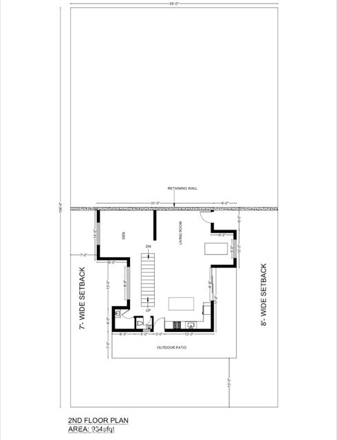
Prime Hillside Lot with Previously Approved Plans, Renderings & Rare Grandfathered Variances — Build with Confidence A rare opportunity to acquire a hillside lot with prior city approvals, previously approved plans, extensive technical documentation, and strong development potential, located in a neighborhood where new construction homes sell for $1.6M to $2.7M, and zoned for the highly sought-after Mount Washington Elementary School. The property includes a detailed Soil and Geology Investigation Report (2002) prepared by TechnoSoil Inc., analyzing soil composition, slope stability, and geotechnical conditions for a proposed single-family residence. TriTech Engineering Associates provided a current topographic survey (2021) with a transferable DWG file for AutoCAD. Previous grading documents and previously approved site/building plans give buyers confidence that the property is highly buildable. The seller also has current development experience, further demonstrating reliability and expertise. Professional renderings illustrate potential builds, including a single-family residence with a separate ADU (~2,950 sq. ft.), highlighting the property’s full development potential. Approved under Municipal Code Section 12.27-B, the lot features a variance permitting a reduced side yard and flexible setbacks within the R20 hillside zone — rarely granted under current regulations, offering valuable grandfathered advantages. While the buyer must verify current approvals, the combination of prior studies, previously approved plans, renderings, recent survey, and the seller’s development experience provides a strong foundation for a smooth permitting and construction process. Set in a scenic hillside location with access to the highly sought-after Mount Washington Elementary School, this lot offers a rare combination of build readiness, grandfathered flexibility, ADU potential, and strong neighborhood market value — ideal for builders, investors, or homeowners seeking a custom residence with confidence and minimal uncertainty

Map Location

Listing provided courtesy of Billy Chacon of Berkshire Hathaway HSCP. Last updated 2025-11-07 09:22:18.000000. Listing information © 2025 CRMLS.

Inquire Now
admin Real estate https://s3.amazonaws.com/static.organiclead.com/Site-48750597-fad4-4739-909d-ca390a15c8e5/theme1/realtor.jpg Broker/Owner # # # https://s3.amazonaws.com/static.organiclead.com/Site-48750597-fad4-4739-909d-ca390a15c8e5/theme1/realtor.jpg