Property Detail

2366 Newhall

San Jose CA 95128

$1,195,000

Status: Active

Property Details

Description

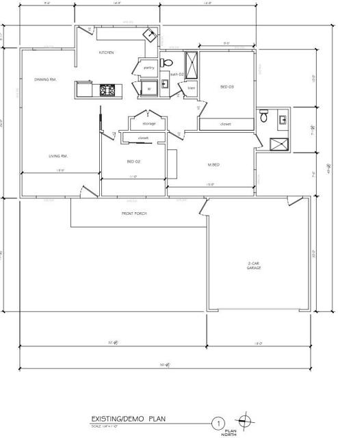
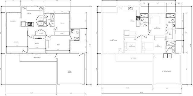
Here's your opportunity to customize a home to your liking. This 3/2 home, located in the highly coveted Cory neighborhood, is ready for your remodeling vision. Dual pane windows throughout (except dining rm windows), newer composition roof installed in 2023, hardwood flooring, attached 2-car garage, and spacious front/rear yards. There are proposed plans for a small remodel addition to achieve a 3 bdrms/3 baths (including 2 suites) and open layout (pending permit). Located near Santana Row, Valley Fair, Silicon Valley high-tech companies, and easy access to freeways and expressways.

Map Location

Listing provided courtesy of Hiep K. Nguyen of Christie's International Real Estate Sereno. Last updated 2025-11-07 09:14:37.000000. Listing information © 2025 CRMLS.

Inquire Now
admin Real estate https://s3.amazonaws.com/static.organiclead.com/Site-48750597-fad4-4739-909d-ca390a15c8e5/theme1/realtor.jpg Broker/Owner # # # https://s3.amazonaws.com/static.organiclead.com/Site-48750597-fad4-4739-909d-ca390a15c8e5/theme1/realtor.jpg